Prodej stavební parcely 289 m², Červená Řečice
599 900 Kč
2 076 Kč za m²
Popis nemovitosti
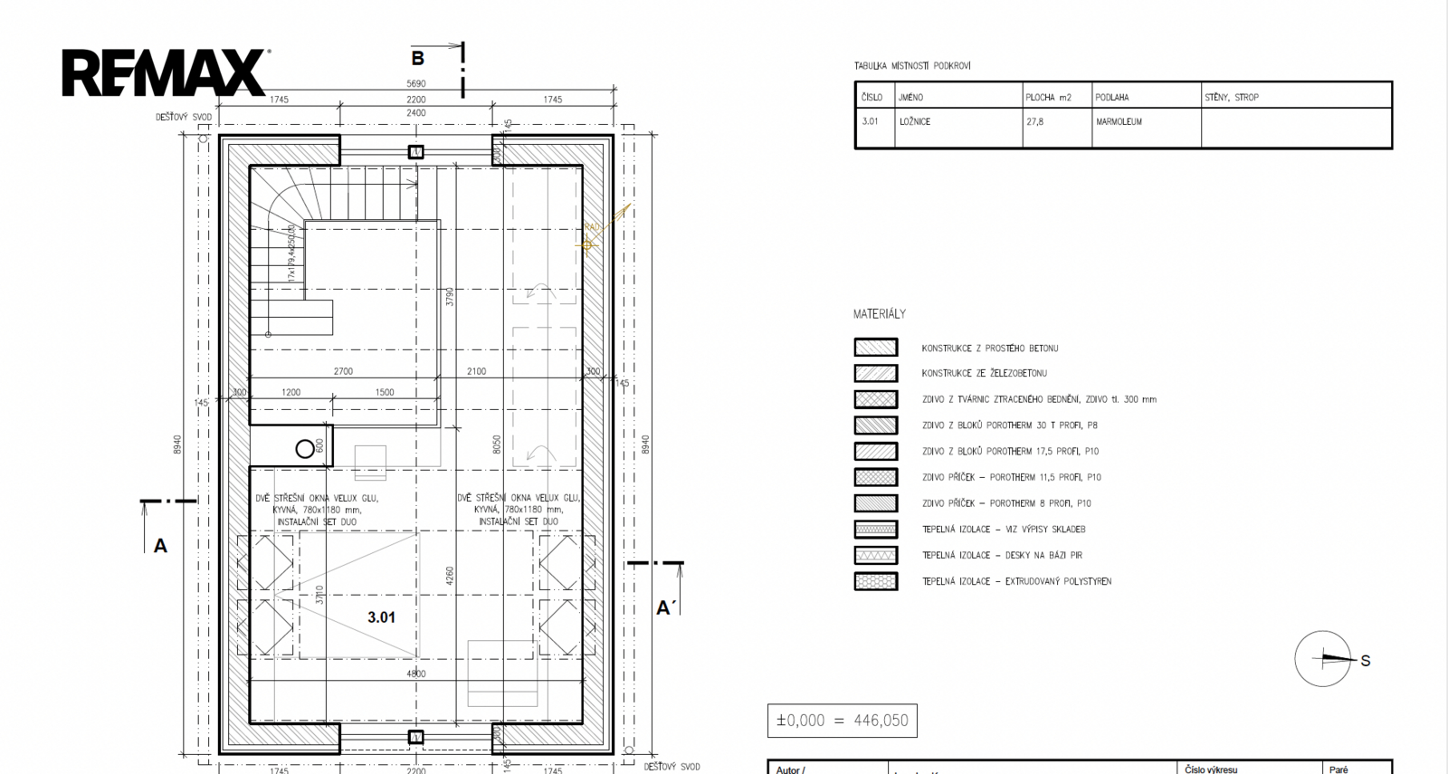
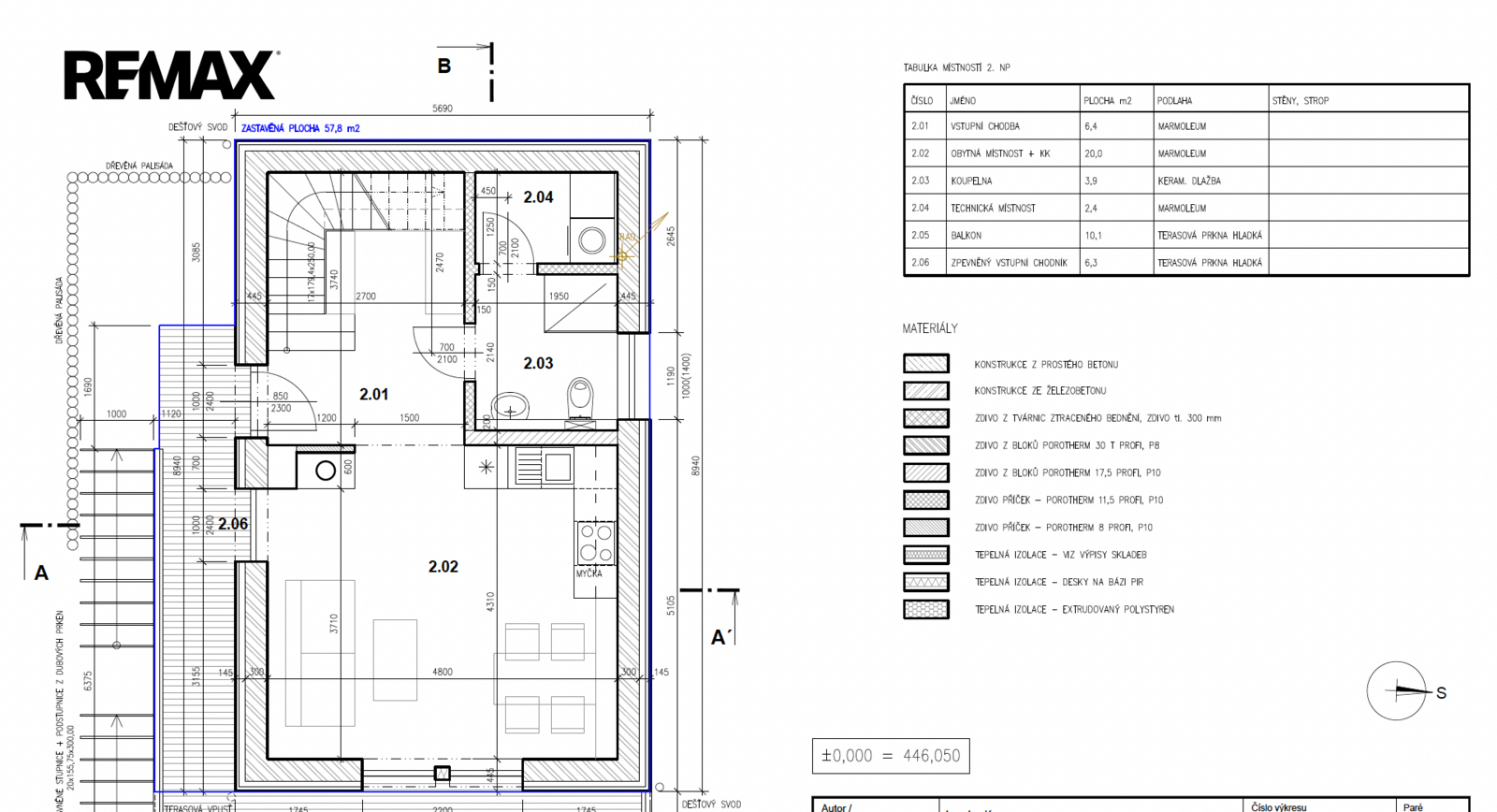
Jedná se o prodej stavebního pozemku určeného k výstavbě rekreačního objektu o výměře 289m2. Pozemek je umístěn 700m od vodní nádrže Trnávka, v okrajové části obce Popelištná. Je zpracována projektová dokumentace pro výstavbu rekreačního objektu o zast. ploše 57,8m2, která zahrnuje 1.NP s užitnou plochou 33,6m2 (dvojgaráž), 2.NP s užitnou plochou 32,7m2 (pobytové místnosti), podkroví 27,8m2 (pobytové místnosti), balkon 10,1m2. Elektřina se nachází na hranici pozemku, odkanalizování je dle projektové dokumentace řešeno jímkou na vyvážení, dešťová voda do retenční nádrže s přepadem do vsaku, voda z vlastní studny. Pro více informací volejte makléře nabídky. Prodávající si vyhrazuje právo vybrat kupujícího na základě jím zvolených kritérií.
Základní údaje
ID nemovitosti
399944
Datum vložení
10. října 2024
Cena
599 900 Kč
Plocha celková
289 m²
Plocha pozemku
289 m²
Plocha užitná
289 m²
